Porsche Service
Back to projectsCategory: Commercial
PowerELV
10 images
Summary
Electrical design for a commercial facility, focused on reliable distribution and coordinated systems.
Featured Projects
Electrical installations
- Lighting and socket circuits
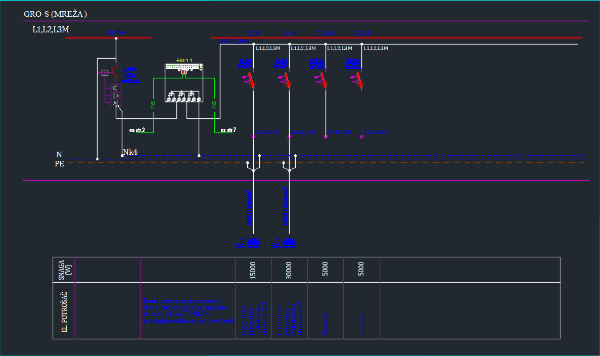
- Distribution & single-line diagrams
- Earthing / protection
Low-current systems (ELV)
- Structured cabling and IP telephony
- CCTV and access control
